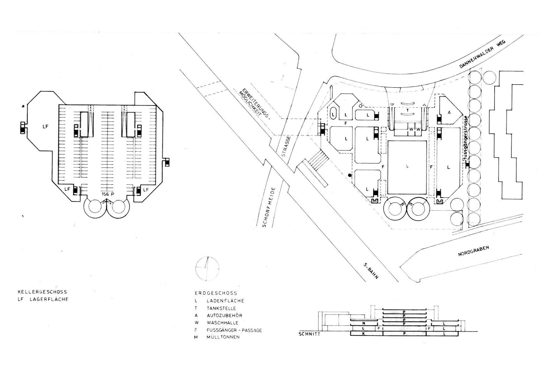
Jahr: 1970

Adresse: Dannenwalder Weg, Wittenau

Auftraggeber: Autoveri

Funktion: Einkaufszentrum

Zusammenarbeit: keine Angaben

Archivmaterial bei: Privat

 

 

Nicht realisiert

Heute: keine Angaben